, prova a modificare i filtri di ricerca.

Oops!

Non ci sono annunci per la tua ricerca. Rimuovi dei filtri o aumenta l’area di ricerca per avere più risultati.

VIA DELL'ARTIGIANATO 20, FORMIGARA (CR)

Capannoni

Rif. 1132

Sito nel comune di Formigara in V. di San Bassano/V.dell'Artigianato, all'interno della zona industriale, l'unità immobiliare oggetto del presente annuncio fa parte di un unico capannone su due livelli. L'unità si compone di un magazzino a doppia altezza per una superficie di circa 420mq ed altezza utile di 8,15m, di un blocco amministrativo (uffici-reception-serizi) di circa 85 mq al piano terra e blocco amministrativo (uffici e servizi) di analoghe dimensioni al primo piano. La porzione di capannone è dotata di un'area di pertinenza di circa 500mq.

590MQ -Locali -Bagni -Vani -
€ 780.000,00
Prezzo di Vendita
Vedi dettaglio
VIALE DEL COMMERCIO 2A, CONSELVE (PD)

Capannoni

Rif. 3043330003

L'unità immobiliare in vendita è un immobile ad uso artigianale, della superficie complessiva di 670 mq (e area pertinenziale di 80 mq) sito in zona produttiva a Conselve (PD), a sud del centro urbano ed in continuità con la zona produttiva di Bagnoli di Sopra, fra la SR 104 Via del Mare e la SP 92. Al piano terra sono presenti locali magazzino, uffici e servizi; al piano primo sono collocati uffici e servizio. Dispone di area scoperta esclusiva adibita a parcheggio.

670MQ -Locali -Bagni -Vani -
€ 220.000,00
Prezzo di Vendita
Vedi dettaglio
S.P. 33, SAN CATALDO (CL)

Capannoni

Rif. 3091090272

Capannone industriale sito ad ovest rispetto al comune di San Cataldo in zona rurale presso Contrada Roccella S.P. 33, con una superficie complessiva di circa 3975 mq. E' costituito da: un fabbricato distribuito su due elevazioni e destinato ad uffici (420 mq.) con locale tecnico; deposito (225 mq.); un capannone destinato alla produzione (540 mq.); un capannone su due elevazioni destinato allo stoccaggio (1328 mq.); un capannone destinato in parte a zona di produzione (1135 mq.) , in parte a deposito (325 mq.). Completa la proprietà un insieme di terreni che si estendono per una superficie di 1183 mq (mandorleto e seminativo) più aree di pertinenza (5920 mq).

3.975MQ -Locali -Bagni -Vani -
€ 418.000,00
Prezzo di Vendita
Vedi dettaglio
VIA AMERIGO VESPUCCI 10, FERRARA (FE)

Capannoni

Rif. 3246

Nell'area industriale lungo la via Diamantina, a pochi metri dal casello di Ferrara Nord della Autostrada A13, il grande capannone in vendita misura circa 3250 mq ed è composto da 4 ambienti oltre una zona uffici (circa 200 mq), suddivisa in cinque ambienti più servizi igienici. Completa la proprietà una corte pertinenziale intorno al capannone.

3.425MQ -Locali -Bagni -Vani -
€ 485.000,00
Prezzo di Vendita
Vedi dettaglio
VIA ROSCIANO, 5, BELVEDERE OSTRENSE (AN)

Capannoni

Rif. 3065580016

Trattasi di opificio sviluppato a piano seminterrato, terra e primo, con annessa abitazione del custode a piano primo, facente parte di più ampio complesso a destinazione produttiva; completa la proprietà la corte esterna comune; Le superfici sono le seguenti: PSeminterrato zona deposito: 487,00 mq; PT zona laboratorio: 634,00 mq; PT zona uffici e servizio per personale: 98,00 mq; P1 zona uffici: 74,00 mq; P1 abitazione custode: 65,00 mq.

1.358MQ -Locali -Bagni -Vani -
€ 325.000,00
Prezzo di Vendita
Vedi dettaglio
VIA GIUSEPPE SARAGAT, MANTOVA (MN)

Capannoni

Rif. 2414567

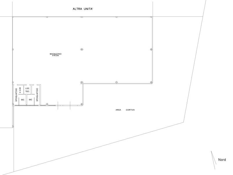
Magazzino di 835 mq circa suddiviso in ambiente unico con altezza interna pari a 6,50 m, locale tecnico e due ambienti spogliatoio con relativi servizi igienici. La forma squadrata ad L e la maglia strutturare regolare, che corre prevalentemente sul perimetro esterno rendono il cespite di facile utilizzazione e trasformazione. Completa la proprietà un area cortilizia esclusiva che corre lungo i due lati liberi dell'edificio. Il magazzino si trova all'interno di un complesso costituito da cinque unità in aderenza tra loro. La posizione del cespite, sito precisamente in Via Sandro Pertini, alle porte del quartiere Cittadella, in una zona prevalentemente industriale, è buona data la vicinanza alla tangenziale nord di Mantova ed al casello di Mantova Nord.

800MQ 6Locali 2Bagni -Vani 1
€ 249.000,00
Prezzo di Vendita
Vedi dettaglio
VIA GIANI, 1/3, SALE (AL)

Capannoni

Rif. 2420855

SALE - Precisamente in Via Giani proponiamo la vendita di uno stabile cielo/terra di grandi dimensioni ad uso industriale. L'immobile è disposto sue due livelli e risulta essere internamente composto da un un ampio ambiente ad uso produttivo, oltre ad una porzione destinata ad uffici e servizi. Completa la proprietà un'area esterna di pertinenza di circa 7750 mq. Ottima l'ubicazione in quanto la vicinanza alla Strada Statale 211 rende agevoli i collegamenti di trasporto.

8.140MQ -Locali -Bagni -Vani -
€ 790.000,00
Prezzo di Vendita
Vedi dettaglio
Via Provinciale Spezia, 149, VEZZANO LIGURE (SP)

Capannoni

Rif. 6004941

Immobile ad uso capannone artigianale su un unico livello, censito catastalmente in categoria D/7, composto da capannone principale (locale lavorazione, bagni, docce), magazzino, forno ed ampia area esterna di 2441 mq. La proprietà è delimitata da cancello in ferro manuale a doppia anta. L'immobile è situato in zona artigianale del comune di Vezzano Ligure.

700MQ -Locali -Bagni -Vani -
€ 150.000,00
Prezzo di Vendita
Vedi dettaglio
VIA ALESSANDRO VOLTA N. 15 N. A15/A N.15/B, CAGLI (PU)

Capannoni

Rif. 3071010146

Trattasi di porzione di fabbricato a destinazione artigianale (categoria catastale D/1),sito nel Comune di Cagli (PU), L'unità ha forma planimetrica rettangolare, con sviluppo prevalente a piano terra di mq. 309,00 costituita da laboratorio con altezza interna netta (H) di m. 7,40 (m. 5,90 al contro soffitto), esclusa una porzione di SEL mq. 35 disposta su due livelli con altezze interne nette di m. 2,70 a piano terra (ufficio e bagni) e di m. 4,35 (m. 2,85 al contro soffitto) a piano primo(soppalco). Sul fronte è presente uno scoperto esclusivo di mq. 105, recintato con muretti in c.a. e ringhiera metallica tipo 'orsogril', compLetamente asfaltato.

309MQ -Locali -Bagni -Vani -
€ 86.000,00
Prezzo di Vendita
Vedi dettaglio
VIA DELL ARTIGIANATO N. 32 34, CASALSERUGO (PD)

Capannoni

Rif. 3091080190

Nel cuore della zona artigianale di Casalserugo, in posizione strategica e facilmente raggiungibile grazie alla vicinanza con Padova e ai principali collegamenti viari della provincia, proponiamo un interessante complesso immobiliare polifunzionale situato in Via dell'Artigianato, ideale per attività sportive, direzionali e logistiche.L'immobile si sviluppa su due piani fuori terra ed è inserito al centro di un lotto rettangolare con ampia area scoperta dedicata a parcheggio e manovra, garantendo massima praticità e accessibilità.Il complesso è composto da tre unità immobiliari distinte:- Autorimessa / area parcheggio coperta al piano terra di circa 1.030 mq, costituita da un ampio spazio open space ideale per ricovero mezzi, deposito o attività logistiche;- Locali precedentemente utilizzati come centro fitness, wellness ed estetica sviluppati al piano primo per una superficie di circa 1.404 mq, completo di spazi dedicati al benessere e all'attività sportiva. Al piano terra, in corrispondenza dell'ingresso principale, era presente un'area bar con servizi di circa 214 mq, perfetta come reception e zona accoglienza clienti;-Ufficio indipendente al piano terra di circa 165 mq, con ingresso autonomo, ideale per attività amministrative, professionali o commerciali.Completa la proprietà una spaziosa area esterna esclusiva di circa 1.432 mq, particolarmente funzionale per parcheggi, movimentazione mezzi e gestione dei flussi.L'intero fabbricato si presenta in buone condizioni manutentive e conservative, rappresentando una soluzione versatile e immediatamente utilizzabile per molteplici destinazioni d'uso.

1.783MQ -Locali -Bagni -Vani -
Trattativa riservata
Trattativa riservata
Vedi dettaglio
Via dell'Artigiano, n. 14/1, SAN GIORGIO DI PIANO (BO)

Capannoni

Rif. 3108160021

Trattasi di porzione di capannone produttivo edificato nella seconda metà degli anni '90 di 800 mq con due corti pertinenziali esclusive per un totale di 310 mq, catastalmente censito in categoria D/1, posto nella prima periferia del Comune di San Giorgio di Piano, in via dell'Artigiano. L?immobile sorge in una zona a destinazione prevalentemente produttiva/artigianale ed è così suddiviso: al piano terra si trova un ingresso con vano scala,un opificio e dei servizi igienici,al piano primo sono presenti uffici open-space e servizi igienici Esternamente sono presenti due aree cortilive esclusive. La posizione è buona rispetto alla grande viabilità, essendo sulla strada provinciale Galliera.

800MQ -Locali -Bagni -Vani -
€ 415.000,00
Prezzo di Vendita
Vedi dettaglio
VIA DEI MESTIERI 3, RUSSI (RA)

Capannoni

Rif. 3074030002

LOCATO - Trattasi di immobile attualmente in uso per commercializzazione di materiali edili e pavimentazioni di parquet (destinazione catastale D/8), localizzato nella piccola lottizzazione di Monaldina Nord, a km 0,800 da Godo, che si sviluppa sulla S.P. 253, via Faentina, che collega Russi (ad ovest a km 4,000) con Ravenna e località Fornace Zarattini (ad est a km 9,000). Il comparto produttivo, formato da n° 5 immobili, è di impianto recente, così come il cespite edificato nel 2008. Lo stesso ha una forma volumetrica non regolare divisa in due parti. La parte adibita a showroom e uffici con finiture di livello, copertura in lamellare di legno, ampie vetrate, muratura in parte faccia a vista, arredi interni di pregio. L'altra parte a destinazione magazzino e zona verniciatura, edificata con struttura prefabbricata, pannelli sandwich di tamponamento e copertura piana. Entrambi due volumi si sviluppano anche in parte al piano primo. Completa la proprietà una resede di pertinenza pari a mq. 1305

854MQ -Locali -Bagni -Vani -
€ 616.000,00
Prezzo di Vendita
Vedi dettaglio
Loc. Collenaresco, Zona Industriale, GIULIANOVA (TE)

Capannoni

Rif. 3061110925

Trattasi di due unità catastali site nel Comune di Giulianova (TE), distinte al catasto fabbricati del Comune suddetto al foglio 26 part. 202 sub. 1 (cat D/1 - piano terra); foglio 26 part. 202 sub. 2 (cat D/8 - piano terra) insistenti su un'ampia corte esclusiva. La porzione catastalmente distinta al sub.1 prevede principalmente una grande porzione destinata a deposito, porzione direzionale, servizi e locali tecnici, zona carico/scarico, cella frigo e locale Enel per complessivi 4745 mq. Completa la proprietà portico di 115 mq c.a. La porzione catastalmente distinta al sub.2 è costituita da uffici e servizi per un totale di 750 mq. Completano la proprietà portico di 155 mq c.a. ed area pertinenziale di 300 mq c.a. La tipologia costruttiva appare in c.a.p con rivestimento in parte in lastre prefabbricate di colore blu ed in parte in mattoncini. La corte pertinenziale, di 6345 mq ca.,

6.065MQ -Locali -Bagni -Vani -
€ 1.000.000,00
Prezzo di Vendita
Vedi dettaglio
Via Raiale, PESCARA (PE)

Capannoni

Rif. 3061110926/1

Trattasi di due unità immobiliari site nel Comune di Pescara (PE), costituite da un capannone censito in categoria D/8 di 4135 mq ed una abitazione (categ. A/3) di 110 mq, oltre a BCNC. La porzione destinata a capannone prevede: al piano terra (h=4,20 mt 8,60 mt) locali frigo, e piccola porzione con un ufficio ed un servizio igienico; al piano seminterrato deposito (h=3,75 mt) ed al piano secondo una sala lavorazione e servizi (h=3,00 mt). L appartamento si compone di ingresso, sala, cucina, disimpegno, bagno, ripostiglio e tre stanze da letto, oltre a balcone di 50 mq.

4.295MQ -Locali -Bagni -Vani -
€ 1.150.000,00
Prezzo di Vendita
Vedi dettaglio
Via Passarella, n. 5, SAN DONA' DI PIAVE (VE)

Capannoni

Rif. 3086310227

Unità immobiliare (catastalmente censita in categoria D/8) utilizzata come attività commerciale. Il fabbricato è un edificio a pianta rettangolare che si sviluppa su due piani fuori terra, oltre sottotetto e grande scoperto esclusivo ad uso parcheggio e pedonale. L'immobile è accessibile da Via Passarella, n. 5. L'edificio presenta superficie di circa 1.190 mq, oltre portico, locali tecnici e sottotetto. Al piano terra è presente un locale principale adibito a salone esposizione. A questo, sono annessi un ufficio, due archivi, due locali di servizio con anti, un locale tecnico e un locale C.T. accessibile dall'esterno. Lungo i lati Sud e Ovest è presente un portico. Al piano primo si trova un ulteriore locale principale ad uso esposizione con annessi tre magazzini. Il piano sottotetto è occupato da un unico vano.

1.942MQ -Locali -Bagni -Vani -
€ 510.000,00
Prezzo di Vendita
Vedi dettaglio
Via Fiojo, 13 Località Le Folle, SERMONETA (LT)

Capannoni

Rif. 3118250006

Il compendio in oggetto risulta essere costituito da: -un fabbricato principale nel quale si svolge attività di ristorazione, sala da ballo e organizzazione di eventi, composto dai tre ambienti principali di sala da ballo, sala banchetti e cucine, più una serie di ambienti secondari come depositi, dispense, bagni, biglietteria, locali caldaia, per un totale di circa 1.950 mq; -un secondo fabbricato con funzione di residenza, deposito e garage con tre camere da letto, un bagno, una cucina-sala da pranzo e soggiorno, per un totale di circa 95 mq; - una serie di piccole costruzione e/o tettoie con funzioni di servizio; - locali adibiti a deposito di circa 80 mq; - due box auto di 27 mq; - area pertinenziale e terreni agricoli per un totale di 10.616 mq. Il compendio è situato a 6 Km dal centro di Sermoneta, in una località a vocazione prevalentemente agraria e dista circa 9 Km dalla S.S.7 Appia e 15 Km dalla S.S.148 Pontina. La superficie totale dell immobile risulta essere pari a mq. 3121; completa la proprietà una resede scoperta, avente la funzione di parcheggio/giardino pari a mq. 10616

3.121MQ -Locali -Bagni -Vani -
€ 447.000,00
Prezzo di Vendita
Vedi dettaglio
Via Ponte di Ferro, snc Frazione Passaggio Stradario 80133 - Loc. Campagna, BETTONA (PG)

Capannoni

Rif. 3141060066

Trattasi di Capannone di complessivi mq 2.666 catastali, oltre a mq 2.260 di corte esterna. L'immobile è suddiviso in numero 4 unità immobiliari destinate a Magazzino deposito e catastalmente censite in categoria C/2, rispettivamente di mq 665 + 667 + 667 + 667, sito a circa 9 km da Santa Maria degli Angeli, in zona artigianale isolata posta in zona agricola. Intorno all'immobile, su tre lati, troviamo la corte esclusiva.

2.666MQ -Locali -Bagni -Vani -
€ 585.000,00
Prezzo di Vendita
Vedi dettaglio
Via dei Pioppi, n. 2, SALA BOLOGNESE (BO)

Capannoni

Rif. 3024750027

LOCATO - Trattasi di opificio di 3.080 mq (catastalmente censito in categoria D/8), con relativa area cortiliva esclusiva di 1.660 mq, in località Padulle, in una piccola lottizzazione artigianale di recente realizzazione. L'immobile, da poco costruito, consta di un piano terra destinato a opificio, uffici e servizi e di un piano primo destinato ad uffici, sala riunioni e servizi igienici. La superficie del piano terra è di mq. 2.600, mentre quella del piano primo risulta essere di 480 mq. E' presente una area cortiliva esterna che si sviluppa su tre lati del fabbricato ed è comodamente accessibile da via Dei Pioppi. L'ingresso autostradale più vicino è quello di Bologna Interporto, distante circa 12 km. comodamente collegato tramite la SP3 Trasversale di Pianura.

3.080MQ -Locali -Bagni -Vani -
€ 1.276.000,00
Prezzo di Vendita
Vedi dettaglio
LOC. Perti, Via VIII Marzo n. 34, FINALE LIGURE (SV)

Capannoni

Rif. 3071130411

Trattasi di porzione di capannone produttivo di 367 mq adibiti a laboratorio(h= 5,35 mt) e servizi (h= 2,40 mt), 49,50 mq adibiti a loggia e 171 mq adibiti a corte carrabile, catastalmente censito in categoria D/7, posto al primo livello di in un fabbricato artigianale articolato in due piani fuori terra, accessibile anche da mezzi pesanti, sito in via VIA VIII Marzo n. 34, nel Comune di Finale Ligure (SV) in Località Perti. Il cespite è composto da un ampio locale ad uso laboratorio dove all'interno, sul lato nord, è posizionato un locale spogliatoio, un anti-wc con locale bagno e doccia mentre all'esterno, sul lato sudovest e nordovest, è posizionata una loggia. Completa la proprietà una corte esclusiva di mq.171 asfaltata e carrabile. Il fabbricato è stato costruito all'inizio degli anni 2000. sono presenti due accessi carrabili, uno che affaccia direttamente su via VIII Marzo in metallo e uno che affaccia sulla corte esclusiva con infisso di tipo industriale in pvc e metallo.

416MQ -Locali -Bagni -Vani -
€ 276.100,00
Prezzo di Vendita
Vedi dettaglio
Zona Artigianale - Loc. Li Luccianeddi snc, SANTA TERESA GALLURA (SS)

Capannoni

Rif. 134820

L'immobile è situato nella Zona Artigianale del Comune di Santa Teresa di Gallura - loc. Li Luccianeddi s.n.c., ed è costituito da un fabbricato posto all'interno di un lotto della superficie catastale di mq 1614 suddiviso in laboratorio artigianale, magazzino e casa per il custode. Il laboratorio artigianale è posto al piano terra ed è composto da un ampio locale dell'altezza utile di m 7,00, adibito a rimessaggio per imbarcazioni e comprensivo di ufficio con archivio, locale WC, piccolo magazzino scorte e terrazza, per una consistenza catastale complessiva di circa mq 544. La casa per il custode consiste in un appartamento posto al piano terra, sul fronte posteriore del fabbricato e composto da un ampio soggiorno pranzo, due camere da letto, due bagni, ripostiglio, disimpegno ed ampia terrazza per una superficie catastale dell'area coperta pari a mq 137. Il locale magazzino con adiacente locale tecnico pompe antincendio è posto al piano seminterrato ed è costituito da un ampia sala comprensiva di servizi igienici, di altezza utile pari a m 4,00 e consistenza catastale complessiva pari a mq 710. Il fabbricato è circondato su tutti i lati da un area scoperta interamente recintata dell'ampiezza di circa mq 879, utilizzata come area di manovra dei mezzi e rampa di accesso al locale magazzino (pendenza di circa il 20%) oltre che di accesso alla casa del custode, ed in piccola parte utilizzata come giardino.

1.391MQ -Locali -Bagni -Vani -
€ 797.500,00
Prezzo di Vendita
Vedi dettaglio