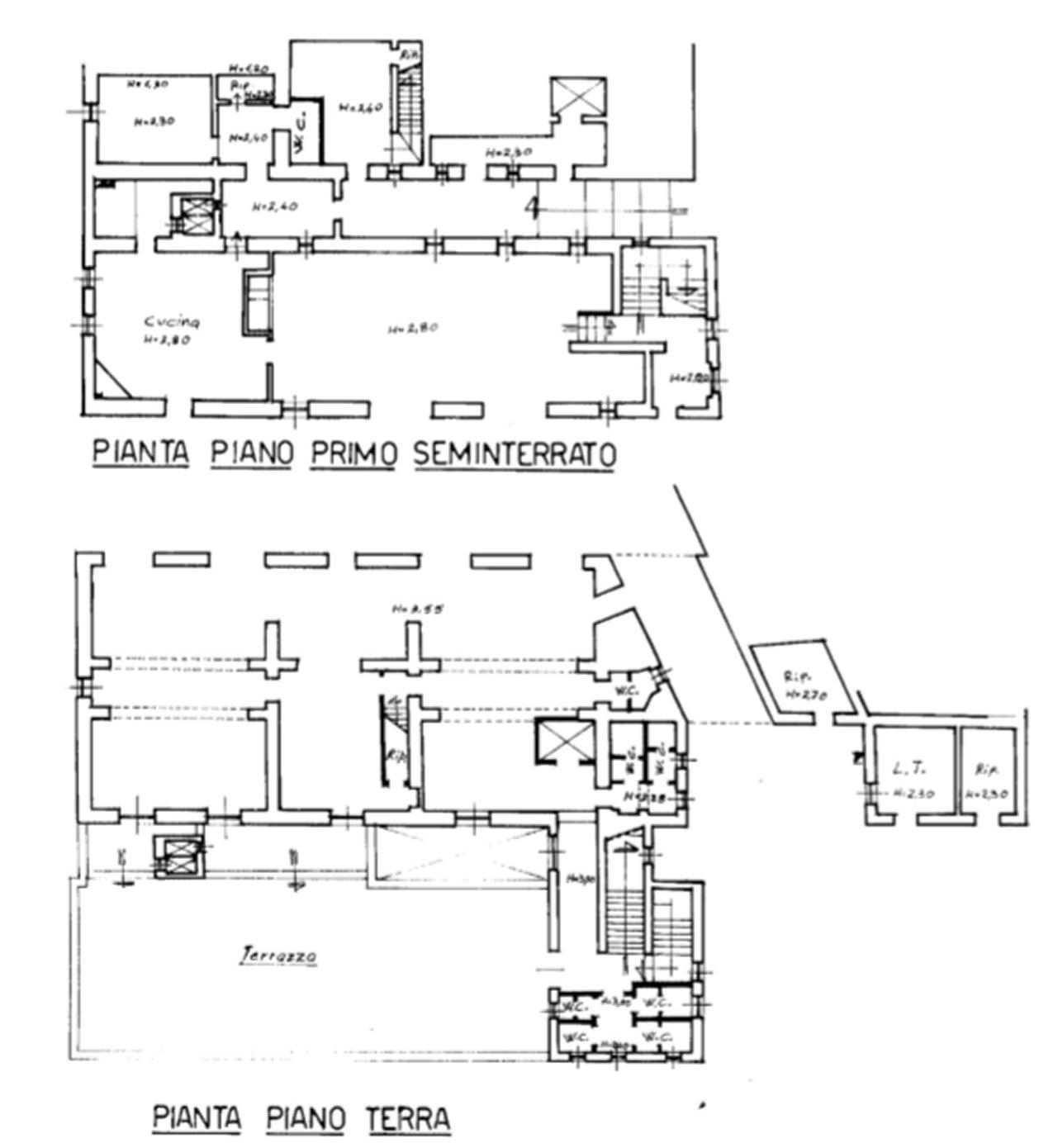
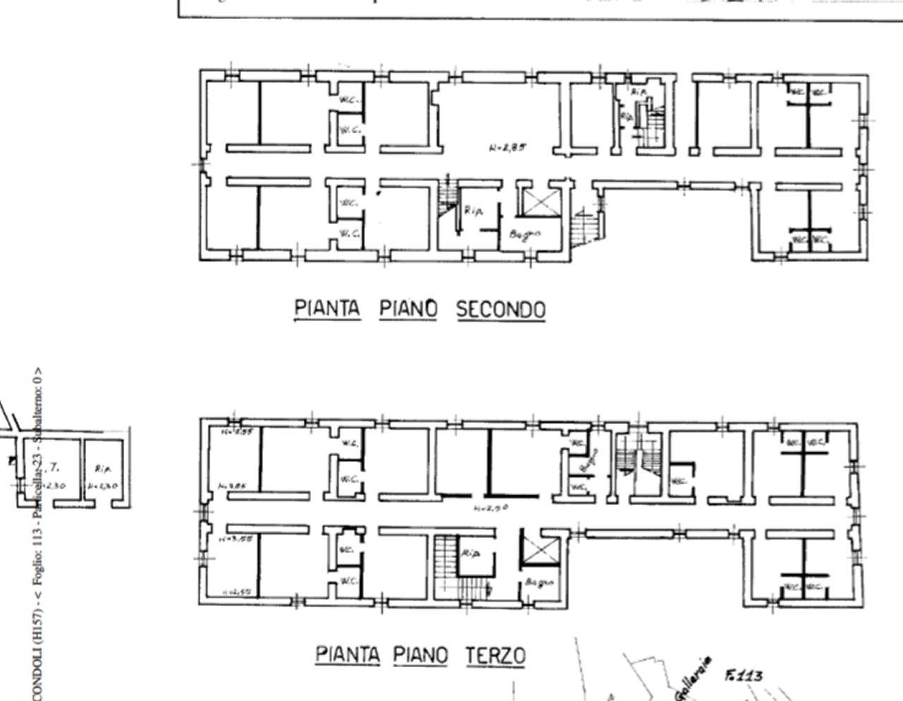
Complesso immobiliare in Comune di Radicondoli, Loc. Bagni alle Galleraie , costituito da un fabbricato di quattro piani con cortile, sul quale insiste un locale interrato ad uso cantina e altro cortile con insistenti due ripostigli e centrale teremica, uno stabilimento termale di un piano fuori terra e due piani sottostrada, cappella privata e terreni